Konstruktion & Isolierung
Wandaufbau:
- Innen- und Außenverkleidung mit 100 mm PIR-Dämmung
- Hochwertige Fassadenverkleidung aus Trapezblech in Holzoptik
- U-Wert: 0,21 W/m²K
Dachaufbau:
- Flachdach mit 100 mm PIR-Dachdämmung
- Dachblech inkl. Traufblechen in Anthrazit
- U-Wert: 0,21 W/m²K
Bodenaufbau:
- 100 mm Bodendämmung
- OSB-Platte
- Vinylboden (Farbe wählbar)
- U-Wert: 0,21 W/m²K
🏠 Innenausstattung
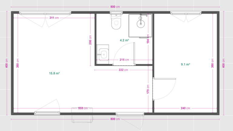
Badezimmer – Premium-Version:
- Duschkabine 90 × 90 cm
- Wandhängendes WC
- Verkleidete Wände in verschiedenen Optiken (Holzoptik, Steinoptik)
- Großes Waschbecken mit Unterschrank und LED-Spiegel
- Elektrischer Heizkörper
- 60 Liter SLIM Boiler
Küche (1,80 m lang):
- Unter- und Oberschränke
- Spüle
- Geschirrspüler
- Elektrischer Ofen
- 4-Platten-Kochfeld
- Kühlschrank
⚡ Elektroinstallation (im Preis enthalten)
- 6× Spotlampen
- 5× Doppelsteckdosen + zusätzliche Steckdosen für Küchengeräte
- 1× Verteilerkasten
- 4× Lichtschalter
Klimaanlage mit Heizfunktion (3,5 kW) – zum Kühlen und Heizen
🪟 Fenster & Türen
- Hochwertige Aluminiumfenster und -türen mit zusätzlicher Dämmung im Rahmen
- 3-fach verglast
- Farbe: Anthrazit (RAL 7016)
Hohe Stabilität und moderne Optik



