🛠️ Konstruktion & Isolierung
Wandaufbau:
• Innen- und Außenverkleidung mit 100 mm PIR-Dämmung
• Hochwertige Fassadenverkleidung aus Trapezblech in Holzoptik
• U-Wert: 0,21 W/m²K
Dachaufbau:
• Flachdach mit 100 mm PIR-Dachdämmung
• Dachblech inkl. Traufblechen in Anthrazit
• U-Wert: 0,21 W/m²K
Bodenaufbau:
• 100 mm Bodendämmung
• OSB-Platte
• Vinylboden (Farbe wählbar)
• U-Wert: 0,21 W/m²K
🏠Innenausstattung
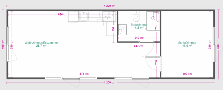
Badezimmer – Premium-Version:
• Duschkabine 90 × 90 cm
• Wandhängendes WC
• Verkleidete Wände in verschiedenen Optiken (Holzoptik, Steinoptik)
• Großes Waschbecken mit Unterschrank und LED-Spiegel
• Elektrischer Heizkörper
• 60 Liter SLIM Boiler
Küche (1,80 m lang):
• Unter- und Oberschränke
• Spüle
• Geschirrspüler
• Elektrischer Ofen
• 4-Platten-Kochfeld
• Kühlschrank
⚡ Elektroinstallation (im Preis enthalten)
• 10× Spotlampen
• 8× Doppelsteckdosen + zusätzliche Steckdosen für Küchengeräte
• 1× Verteilerkasten
• 6× Lichtschalter
Klimaanlage mit Heizfunktion (3,5 kW) – zum Kühlen und Heizen
🪟 Fenster & Türen
• Hochwertige Aluminiumfenster und -türen mit zusätzlicher Dämmung im Rahmen
• 3-fach verglast
• Farbe: Anthrazit (RAL 7016)
• Hohe Stabilität und moderne Optik


